本日ご紹介いたします物件は、、、、
大人気のスプランディッドシリーズの新築マンションです。
2026年1月下旬から入居開始予定の物件で
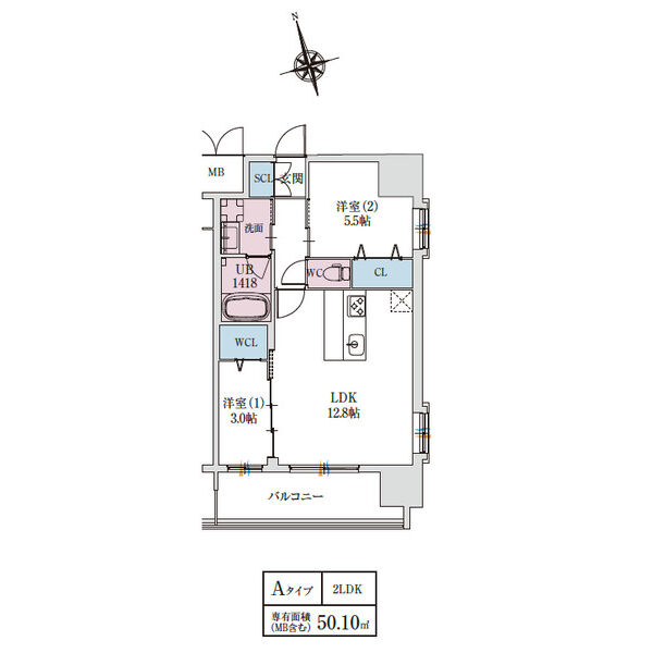
間取りは1LDK・1SLDK・2LDKの3パターンがあります。
本日は2LDKのご紹介です。
JR東海道線「東淀川駅」まで徒歩4分・「新大阪駅」まで8分
また、御堂筋線・阪急京都線も徒歩圏内で利用可能!!
ペットも小型犬もしくは猫1匹まで飼育可能!!
新築の為初期費用もの項目も少なくお部屋を借りることができます。
それではお部屋の紹介にいってみましょう!!
「スプランディッドライズ新大阪ノース」について
「スプランディッドライズ新大阪ノース」の物件概要

| 所在地 | 大阪府大阪市東淀川区西淡路1丁目 |
|---|---|
| 最寄駅 | Osaka MOsJR東海道・山陽本線/東淀川駅 徒歩4分 |
| 築年数 | 2026年1月 |
| 間取り | 2LDK |
| 構造 | 鉄筋コンクリート造 |
「スプランディッドライズ新大阪ノース」の周辺施設
- ユニクロJR新大阪店 533m
- ジャパン東三国店 600m
- スーパーかまだ西淡路店 392m
- ファミリーマート東淀川駅前店 126m
- スギ薬局東三国駅前店 359m
- パントリーアルデ新大阪店 514m
- 互恵会大阪回生病院 437m
\ 地域の特性を知りたい方へ /
「スプランディッドライズ新大阪ノース」の室内詳細
間取り

二人入居可 / システムキッチン / 給湯 / 洗髪洗面化粧台 / W.INクローゼット / CATV / CSアンテナ / BSアンテナ / 宅配ボックス / 角部屋 / 温水洗浄便座 / 浴室乾燥機 / 独立洗面台 / 防犯カメラ / クローゼット / シューズボックス / ペット対応 / 水道(公営) / ガス(都市) / 排水(下水) / バス・トイレ別 / シャワー / コンロ種別(ガス) / コンロ口数(三口) / エアコン / 室内洗濯機置き場 / オートロック / エレベータ / バルコニー / フローリング / TVドアホン / ごみ出し24時間OK / インターネット利用料無料 / カード決済(初期費用) / 敷金なし
※設備をクリック頂くと設備で条件を絞ることが可能です
LDK

約12.8帖のリビングルーム!!
柱部分もなく家具の配置がとてもしやすいです
カラーパターンも奇数階と偶数階で2パターンあるので好きな色の方でご入居してみてください!
キッチン

3口ガスコンロのシステムキッチン!!
シンプルで広めの調理スペース!
グリルにカウンターもついてます!
バスルーム

浴室は中も広くてシンプルでオシャレですな!!!
一部がブラウンな感じでいいですね!!
浴室乾燥機付きなので女性の方にも人気の物件です!!
収納

少し広めのウォークインクローゼットなので
荷物が多い方でも安心できます。
洋室

約5.5帖の洋室!
2入居でも充分の広さがあります!!
洋室はもう一部屋あり3.3帖になります。
洗面所

水回りが一つにまとまっている脱衣所スペース!!
三面鏡の洗面台で朝の準備もしやすく女性・男性ともにオススメの物件です!!
こんな条件でお探しの方にオススメ
住みたい条件
その他の条件
お部屋探しでお困りの方へ
ハウスコムFC新大阪北店では、大阪市淀川区・東淀川区・吹田市江坂方面を中心に大阪市と吹田市の最新の賃貸情報(マンション・アパート・戸建)をお届けしています。
任せてよかったと納得、安心していただけるお部屋探しのサポートを提供させていただきます。
ご希望のお部屋がホームページに掲載されていない場合でもご安心ください。家主様のご都合でインターネットに掲載できないご希望エリアの物件をご紹介させていただきます。
「賃貸・売買で契約の事がわからない」「遠方で来店ができない」「初期費用を抑えたい」等のお悩みはお気軽にご相談ください。